本资料为一套多层商业建筑给排水及消防图纸
图纸主要包括:图纸目录、说明、系统图、材料表、设备大样图,地下室给排水及消防平面图等。
设计内容:
本工程用地范围内的给水系统,给水水质处理系统,热水系统,空调补水系统,排水系统,室内外消火栓给水系统,自动喷水系统,泡沫消火栓系统,气体消防系统和灭火器配置。
内容展示:
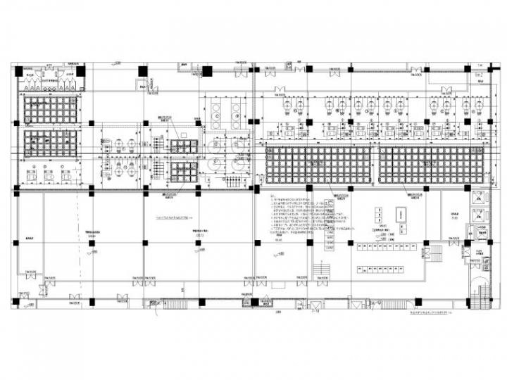
吊一层给排水平面图
负一层给排水平面图
生活水箱及生活水泵房大样图
生活水箱及生活水泵房设备定位图
消防水池及泵房剖面图
给水系统原理图
- 加群专用
- 加入专属土木工程群
-

- 微信公众号
- 关注每天分享工程资料
-

![多层商业建筑给排水及消防图纸-[重庆]会展总部地下车库_商业给排水图纸-1 某会展总部基地项目地下车库及商业建筑给排水及消防图纸](https://www.23tm.com/wp-content/uploads/2021/05/1224298ltclicjgtc7m72e.jpg)
![多层商业建筑给排水及消防图纸-[重庆]会展总部地下车库_商业给排水图纸-负一层给排水平面图 某会展总部基地项目地下车库及商业建筑给排水及消防图纸](https://www.23tm.com/wp-content/uploads/2021/05/122432wkvacjpvheiwcki7.jpg)
![多层商业建筑给排水及消防图纸-[重庆]会展总部地下车库_商业给排水图纸-生活水箱及生活水泵房大样图 某会展总部基地项目地下车库及商业建筑给排水及消防图纸](https://www.23tm.com/wp-content/uploads/2021/05/120405yqug8au1cra4udtf.jpg)
![多层商业建筑给排水及消防图纸-[重庆]会展总部地下车库_商业给排水图纸-生活水箱及生活水泵房设备定位图 某会展总部基地项目地下车库及商业建筑给排水及消防图纸](https://www.23tm.com/wp-content/uploads/2021/05/120406xs5hn2wx3httxner.jpg)
![多层商业建筑给排水及消防图纸-[重庆]会展总部地下车库_商业给排水图纸-消防水池及泵房剖面图 某会展总部基地项目地下车库及商业建筑给排水及消防图纸](https://www.23tm.com/wp-content/uploads/2021/05/120407sbmt15ybux24carf.jpg)
![多层商业建筑给排水及消防图纸-[重庆]会展总部地下车库_商业给排水图纸-给水系统原理图 某会展总部基地项目地下车库及商业建筑给排水及消防图纸](https://www.23tm.com/wp-content/uploads/2021/05/1204557ywkrhkfsmmnhxey.jpg)
