本资料为[国企]北京高层装配式住宅施工组织设计2021(170P+WORD)
一、工程概况
建设规模 总建筑面积为159690.83平方米;容积率 2.40;建筑密度 30%结构类型 住宅楼为钢筋混凝土剪力墙结构,配建及地下车库为框架结构填充墙体 采用蒸压加气混凝土砌块、ALC外墙条板外墙饰面 涂料、石材幕墙、铝板幕墙;建筑节能 地面、外墙、屋面、门窗
二、装配式工程概况
本工程预制率40%、装配率50%,设计使用年限50年,建筑结构的安全等级为二级,住宅抗震设防类别为丙类,抗震设防烈度为8度,设计基本地震加速度为0.20g,设计地震分组第二组,建筑场地类别为Ⅲ类,基本风压0.45KN/㎡,基本雪压0.40KN/㎡。
1~15#住宅楼从首层顶板开始采用预制叠合板,二层及以上采用预制楼梯,三层及以上各层(不含机房层及屋顶水箱间)采用装配整体式剪力墙结构,构件种类共有:预制外墙板、预制内墙板、预制叠合板、预制空调板、预制楼梯。
三、目录
1 工程概况 2 预制构件的生产制作 3 预制构件运输、堆放
4 预制构件的吊装 5 PC构件吊装施工工艺 6 灌浆施工方案与技术措施
7 装配式施工外脚手架方案 8 装配式专项试验方案 9 质量保证措施
10 成品保护措施 11 安全施工措施 12 绿色、文明及职业健康措施
13 应急预案 14 附图
相关图片
项目图片.png
施工现场塔吊、堆场、施工道路布置图.png
预制构件堆场及塔吊布置图.png
1#、6#、9#、12#、15#楼竖向构件吊装顺序图.png
2#、4#、7#、8#、10#楼水平构件吊装顺序图.png
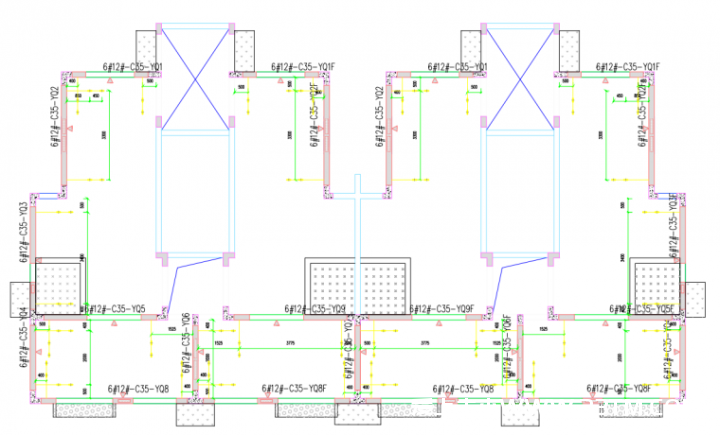
6#、12#楼标准层预制墙体斜支撑平面布置图.png
A户型叠合板布置平面图.png
楼栋流水段划分.png
顶板钢筋绑扎,水电管线预埋.png
一段住宅楼施工流程图.png
下载地址:
提取码:
解压密码:
www.23tm.com
文件下载
- 加群专用
- 加入专属土木工程群
-

- 微信公众号
- 关注每天分享工程资料
-

![[国企]北京高层装配式住宅施工组织设计2021_1 一套完整全面的2021年北京地区某高层装配式住宅施工组织设计](https://www.23tm.com/wp-content/uploads/2021/07/1626081032261056.png)
![[国企]北京高层装配式住宅施工组织设计2021_2 一套完整全面的2021年北京地区某高层装配式住宅施工组织设计](https://www.23tm.com/wp-content/uploads/2021/07/1626081127781740.png)
![[国企]北京高层装配式住宅施工组织设计2021_3 一套完整全面的2021年北京地区某高层装配式住宅施工组织设计](https://www.23tm.com/wp-content/uploads/2021/07/1626081154596184.png)
![[国企]北京高层装配式住宅施工组织设计2021_4 一套完整全面的2021年北京地区某高层装配式住宅施工组织设计](https://www.23tm.com/wp-content/uploads/2021/07/1626081181166150.png)
![[国企]北京高层装配式住宅施工组织设计2021_5 一套完整全面的2021年北京地区某高层装配式住宅施工组织设计](https://www.23tm.com/wp-content/uploads/2021/07/1626081181429640.png)
![[国企]北京高层装配式住宅施工组织设计2021_6 一套完整全面的2021年北京地区某高层装配式住宅施工组织设计](https://www.23tm.com/wp-content/uploads/2021/07/1626081181850052.png)
![[国企]北京高层装配式住宅施工组织设计2021_7 一套完整全面的2021年北京地区某高层装配式住宅施工组织设计](https://www.23tm.com/wp-content/uploads/2021/07/1626081181195468.png)
![[国企]北京高层装配式住宅施工组织设计2021_8 一套完整全面的2021年北京地区某高层装配式住宅施工组织设计](https://www.23tm.com/wp-content/uploads/2021/07/1626081181760481.png)
![[国企]北京高层装配式住宅施工组织设计2021_9 一套完整全面的2021年北京地区某高层装配式住宅施工组织设计](https://www.23tm.com/wp-content/uploads/2021/07/1626081198986988.png)
![[国企]北京高层装配式住宅施工组织设计2021_10 一套完整全面的2021年北京地区某高层装配式住宅施工组织设计](https://www.23tm.com/wp-content/uploads/2021/07/1626081181982954.png)
